- Объект: квартира
- Задача: сделать полный проект дизайна-интерьера
- Площадь: 150 м.кв.
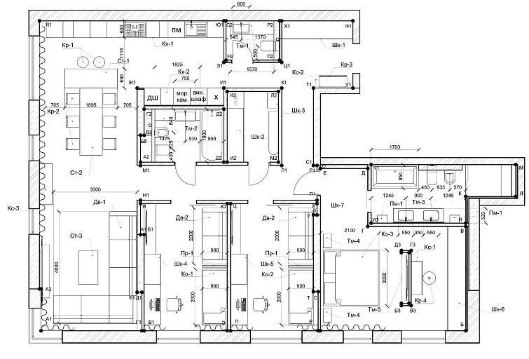
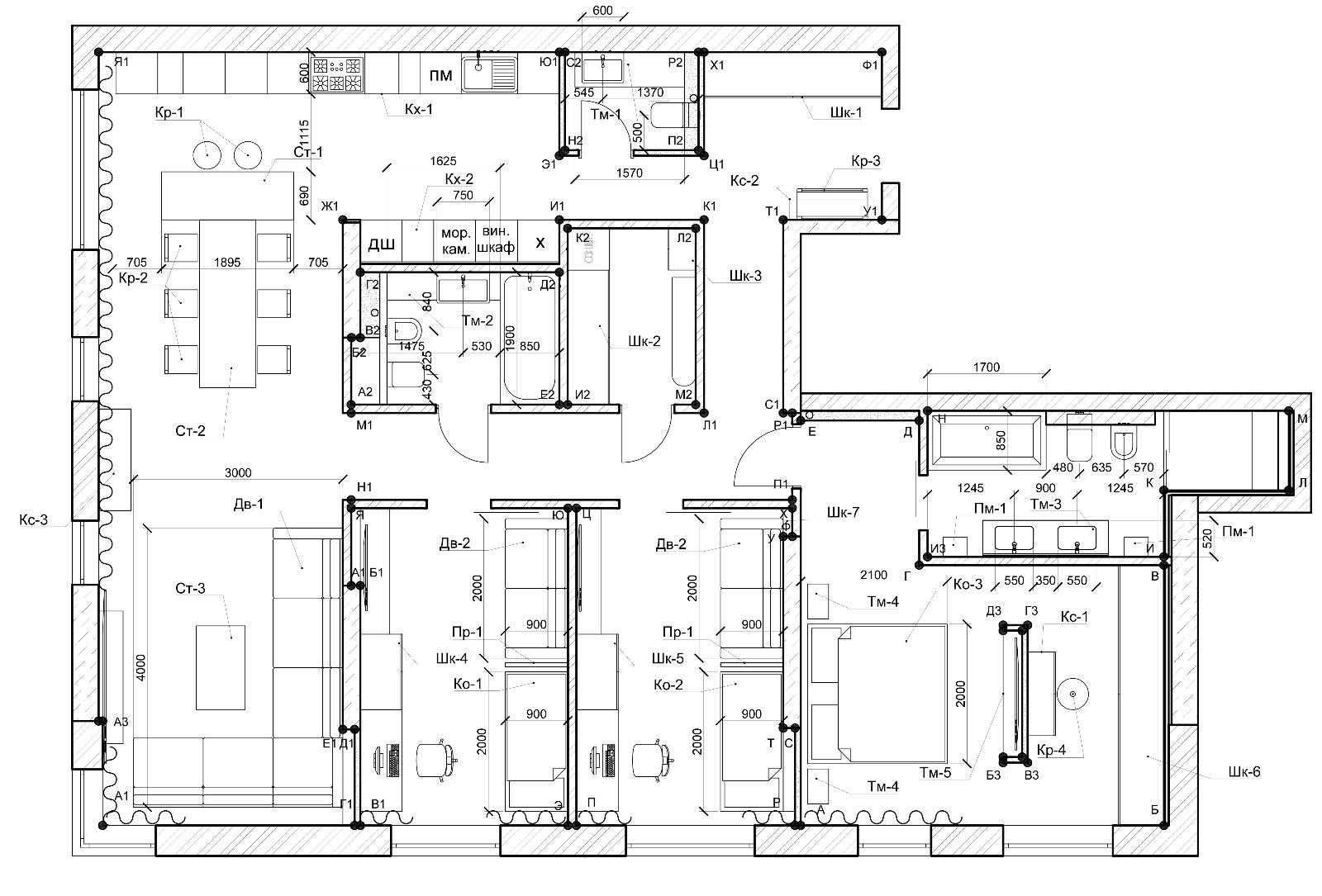
Квартира располагается в Ростове-на-Дону в жилом комплексе Островский . Ставилась задача сделать интерьер для семьи из 4-ех человек, объединив при этом в единое пространство 2-е квартиры. Заказчиком ставилась задача спроектировать большое пространство объединённой кухни-гостиной, главную спальню с собственным гардеробом и санузлом и две детские комнаты.
В ходе проектирования была предложена концепция сквозного общественного пространства без дверей, что позволило органично распределить комнаты согласно их функциональному назначению.
















