Объект: индивидуальный жилой дом.
- Адрес: г. Ростов-на-Дону.
- Площадь: 200 м.кв.
- Задача: сделать архитектурный проект индивидуального жилого дома. Требовалось спроектировать жилой дом для семьи из 2-ух человек
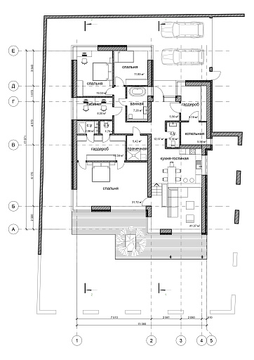
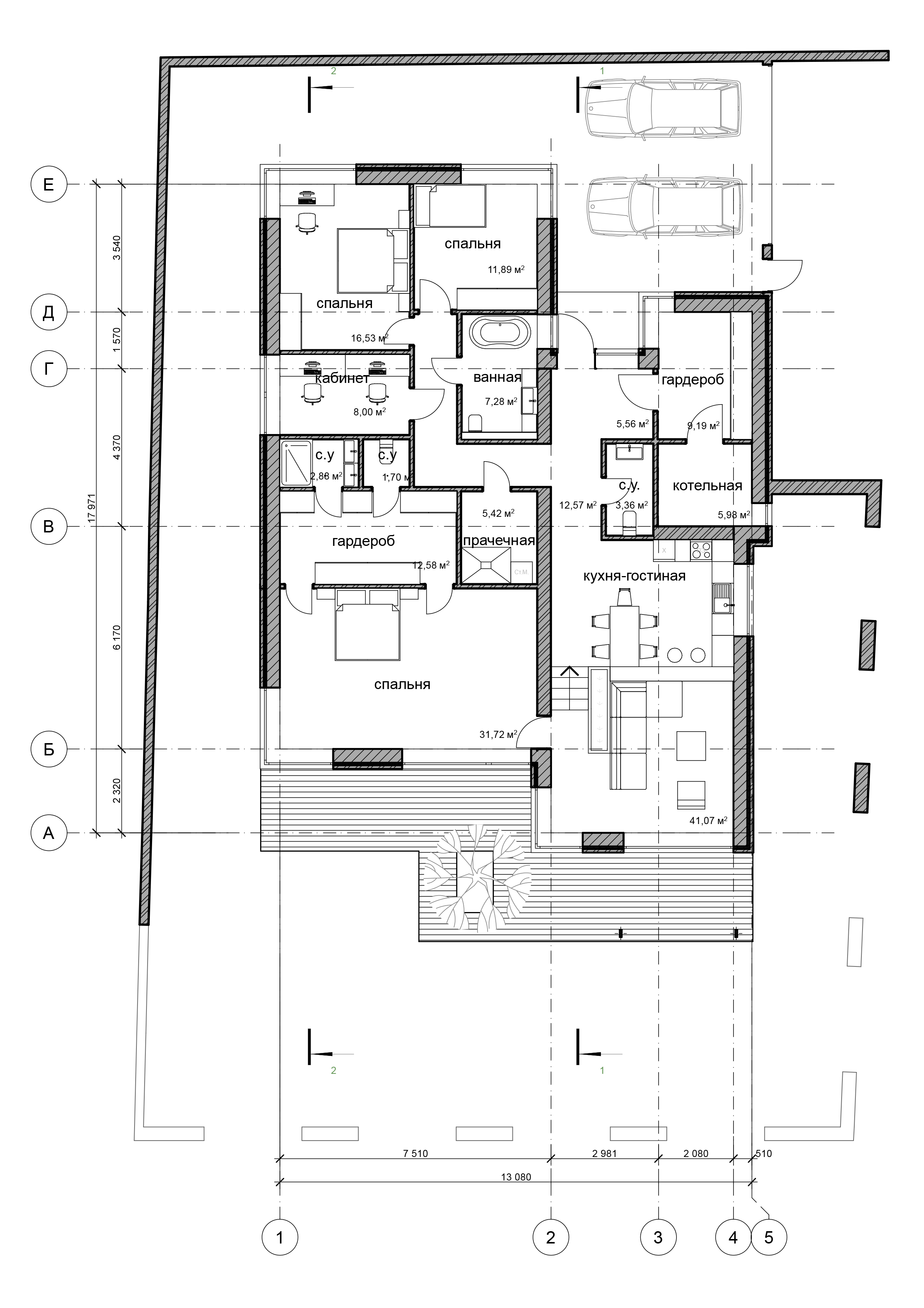
Заказчик хотел видеть в своём будущем доме кухню - гостиную, 3-спальни, кабинет.
Изначально подразумевался дом в современном стиле из клинкерного кирпича разных видов.
Угловой участок строительства обладает сильным уклоном, по согласованию заказчиком было принято решение расположить входную группу наверху участка. Дом организован в двух уровнях, в самом нижнем уровне расположены главная спальня и гостиная с выходом на террасу. В верхнем уровне кухня и остальные помещения. Участок поделен на две основные зоны: входная (с парковкой для автомобилей) в верхней части и задний двор (с террасами для насаждений) в нижней.






